Warianty
warianty
System fasadowy Ponzio Procural PF152EI
Fasadowe systemy przeciwpożarowe zapewniają skuteczną ochronę przeciwpożarową, łącząc spójny i harmonijny wygląd konstrukcji aluminiowych. Dzięki takim rozwiązaniom budynki zaprojektowane przez architektów łączą bezpieczeństwo pożarowe dla użytkowników z indywidualnym stylem obiektu.
Charakterystyka systemu
charakterystyka-systemu
Charakterystyka
System ścian osłonowych słupowo-ryglowych o odporności ogniowej EI30, EI 60.
- możliwość wykonywania przeciwpożarowych ścian osłonowych z pasami międzykondygnacyjnymi przeszklonymi i nieprzeziernymi
- możliwość montażu okien i drzwi (jedno lub dwuskrzydłowych) przeciwpożarowych systemu PROCURAL PE78EI
- taśmy pęczniejące chronią przekładki termiczne oraz uszczelniają połączenia pomiędzy konstrukcją a szybą
- brak ograniczeń szerokości i wysokości konstrukcji
- szerokość kształtowników systemowych, zarówno słupów jak i rygli wynosi 52 mm, a zewnętrznych listew maskujących 51 mm
- rozwiązanie objęte aktualną Klasyfikacją w zakresie odporności ogniowej
Opis
Fasadowe systemy przeciwpożarowe zapewniają skuteczną ochronę przeciwpożarową, łącząc spójny i harmonijny wygląd konstrukcji aluminiowych. Dzięki takim rozwiązaniom budynki zaprojektowane przez architektów łączą bezpieczeństwo pożarowe dla użytkowników z indywidualnym stylem obiektu.
Izolacyjność
System fasadowy PONZIO PROCURAL w zależności od wariantu i zastosowanych komponentów mogą osiągać różne poziomy współczynnika izolacyjności.
- 0.78W/m²K
-
Brak izolacji
powyżej 2 W/m²K
-
Dobra izolacja
1,5 W/m²K
-
Świetna izolacja
poniżej 1,0 W/m²K
Parametry techniczne
parametry-techniczne
| Grubość wypełnienia: | 14 – 66 mm |
|---|---|
| Głębokość słupów: | 85 – 196 mm |
| Głębokość rygli: | 91 – 201 mm |
| Szerokość słupów i rygli: | 52 mm |
| Izolacyjność termiczna: | U0 od 1,7 W/(m²K) UCW/UW od 0,78 W/(m²K) |
| Przepuszczalność powietrza: | klasa AE 2100 |
| Wodoszczelność: | klasa RE 2100 |
| Klasyfikacja ogniowa: | (wariant podstawowy) klasa RE 2100 (wariant półstrukturalny) klasa RE 2700 |
| Dopuszczenia, Certyfikaty: | 1. Klasyfikacja z badań typu dla wersji standardowej: 03-01561/19/R126NZE – PL 2. Klasyfikacja z badań typu dla wersji półstrukturalnej: 04-01561/19/R126NZE – PL 3. Ocena rozprzestrzeniania ognia po ścianach i przekryciach dachowych: 01561/16/R83NZP 4. Klasyfikacja w zakresie odporności ogniowej ścian w konfiguracji pełnej i częściowej: 01561/23/R183NZP |
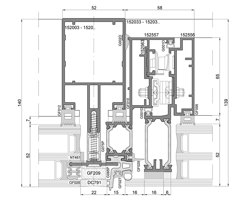
Budowa
budowa
Zobacz inne produkty z serii

System drzwiowy Ponzio Procural PE68/PE68HI
Drzwi aluminiowe

System drzwiowy Ponzio Procural PE78/PE78HI
Drzwi aluminiowe

System okienny Ponzio Procural PE68/PE68HI
Okna aluminiowe

System okienny Ponzio Procural PE78/PE78HI
Okna aluminiowe

System fasadowy Ponzio Procural PF152HI
Systemy fasadowe

System fasadowy Ponzio Procural PF152EI
Systemy fasadowe

Systemy przeciwpożarowe Ponzio Procural PF 152 EI30, EI60
Systemy przeciwpożarowe

Systemy przesuwne Ponzio Procural SL1600TT
Systemy przesuwne